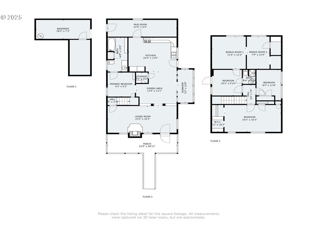
We have an inspection report for your viewing! Own a peice of history on railroad ave! This 1920 built home is full of character and potential, featuring 4 bedrooms plus 2 bonus rooms that could easily serve as extra bedrooms, an office, or hobby space. Inside you'll find a cozy living room for sitting in front of the fireplace, a spacious kitchen, and tons of storage throughout, while outside, major updates have already been taken care of with a brand-new roof (2024), fresh siding, and new paint. While this home still needs some work to shine its brightest, the solid bones and vintage charm make it a true fixer-upper opportunity. As the street name suggests, it is infact located right next to the railroad. This property is ideal for anyone looking to restore and customize a classic home to their taste.
LAST UPDATED | 10/3/2025 | YEAR BUILT | 1920 |
---|---|---|---|
COMMUNITY | _234 | COUNTY | Lane |
STATUS | Active | PROPERTY TYPE(S) | Single Family |
PRICE HISTORY | |
Prior to Aug 31, '25 | $190,000 |
---|---|
Aug 31, '25 - Today | $180,000 |
ADDITIONAL DETAILS | |
AIR | Ceiling Fan(s), None |
---|---|
AIR CONDITIONING | Yes |
APPLIANCES | Dishwasher, Free-Standing Range, Range Hood |
AREA | _234 |
BASEMENT | Crawl Space |
EXTERIOR | Garden |
FIREPLACE | Yes |
HEAT | Baseboard, Fireplace Insert, Wood Stove |
INTERIOR | High Ceilings |
LOT | 0.73 acre(s) |
PARKING | Driveway, RV Access/Parking |
SEWER | Septic Tank |
STORIES | 2 |
STYLE | Stories2 |
TAXES | 1921.03 |
VIEW | Yes |
VIEW DESCRIPTION | Mountain(s) |
WATER | Public |
MORTGAGE CALCULATOR
TOTAL MONTHLY PAYMENT
0
P
I
*Estimate only
We respect your online privacy and will never spam you. By submitting this form with your telephone number
you are consenting for Sally
Harmon to contact you even if your name is on a Federal or State
"Do not call List".
Listing provided by United Real Estate Properties, [email protected]
All information provided is deemed reliable but is not guaranteed and should be independently
verified.
This content last updated on 10/7/25 1:17 PM PDT. Some properties which appear for sale on this web site may subsequently have sold or may no longer be available.
The content relating to real estate for sale on this web site comes in part from the IDX program of the RMLS™ of Portland, Oregon. All real estate listings are marked with the RMLS™ logo, and detailed information about these properties includes the names of the listing brokers.
Listing content is © 2025 RMLS™, Portland, Oregon.
This content last updated on 10/7/25 1:17 PM PDT. Some properties which appear for sale on this web site may subsequently have sold or may no longer be available.
The content relating to real estate for sale on this web site comes in part from the IDX program of the RMLS™ of Portland, Oregon. All real estate listings are marked with the RMLS™ logo, and detailed information about these properties includes the names of the listing brokers.
Listing content is © 2025 RMLS™, Portland, Oregon.

This IDX solution is (c) Diverse Solutions 2025.